24/7 – Launagiai Commercial District

24/7 – Launagiai Commercial District
  • Location Vilnius, Lithuania
  • Type Public
  • Size 16 180 m²
  • Year 2024
  • Status Design Phase
  • Client UAB Darnu Group
  • Images Auksė Rūsytė, comics - Gabrielė L. Ošikaitė
  • Authors Goda Pazukaitė, Gabrielė L. Ošikaitė, Algimantas Varpučanskis, Ignas Lukauskas, Austėja Marija Pauliukevičiūtė

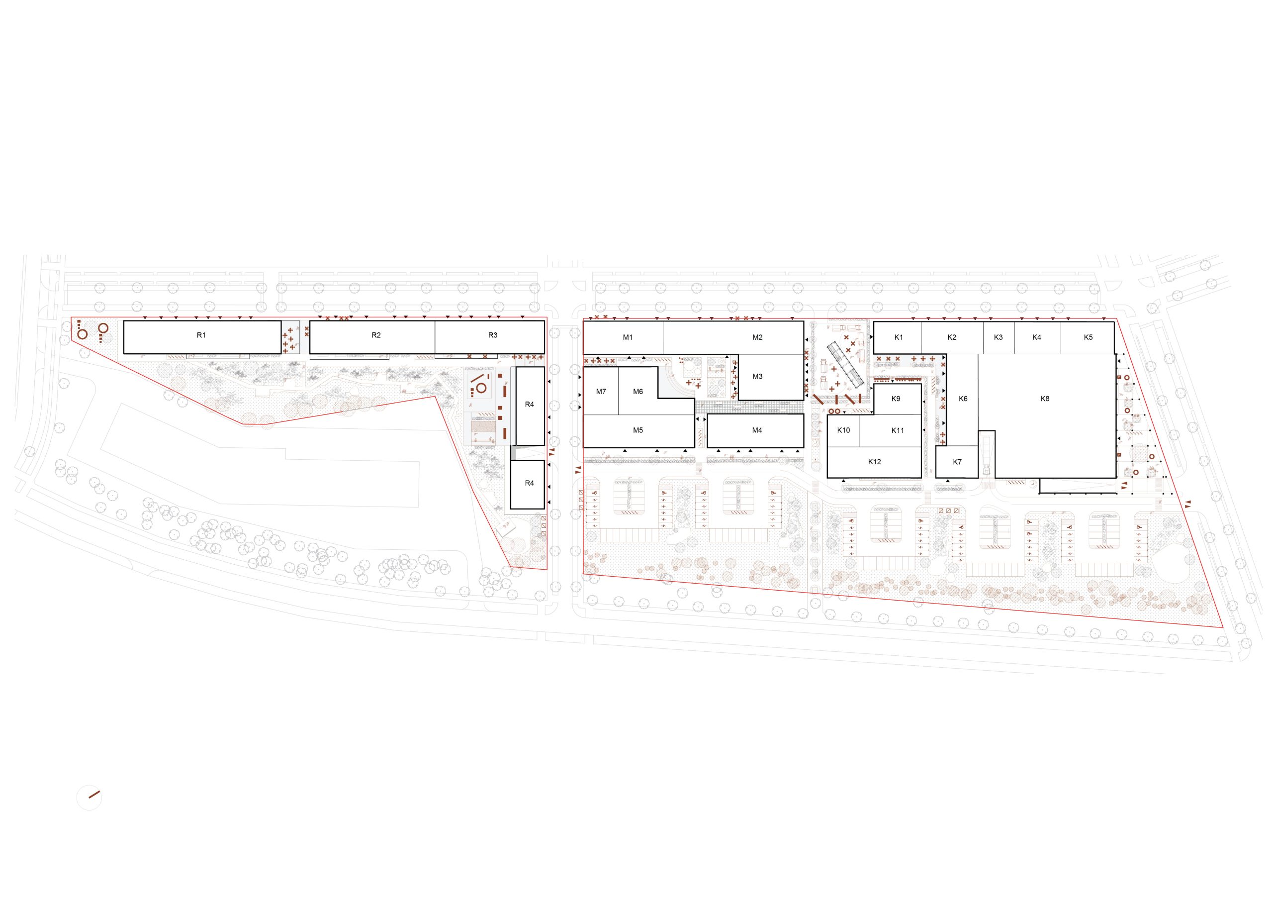
The urban quarter project in Vilnius aims to become a 24/7 constantly active center of attraction for the city's residents. The project has successfully secured 2nd place in the architectural idea competition, and one of the quarters is slated for construction.

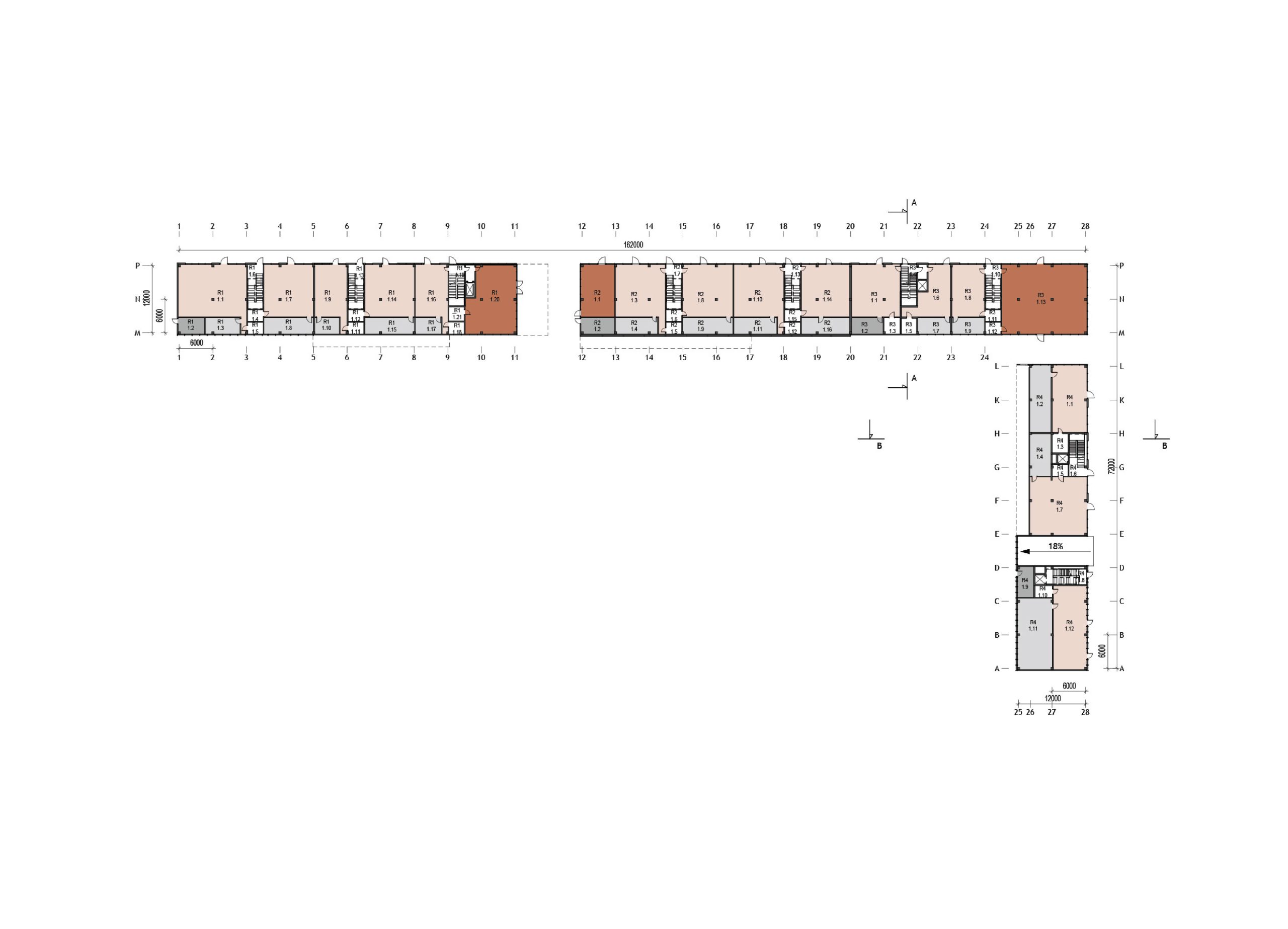
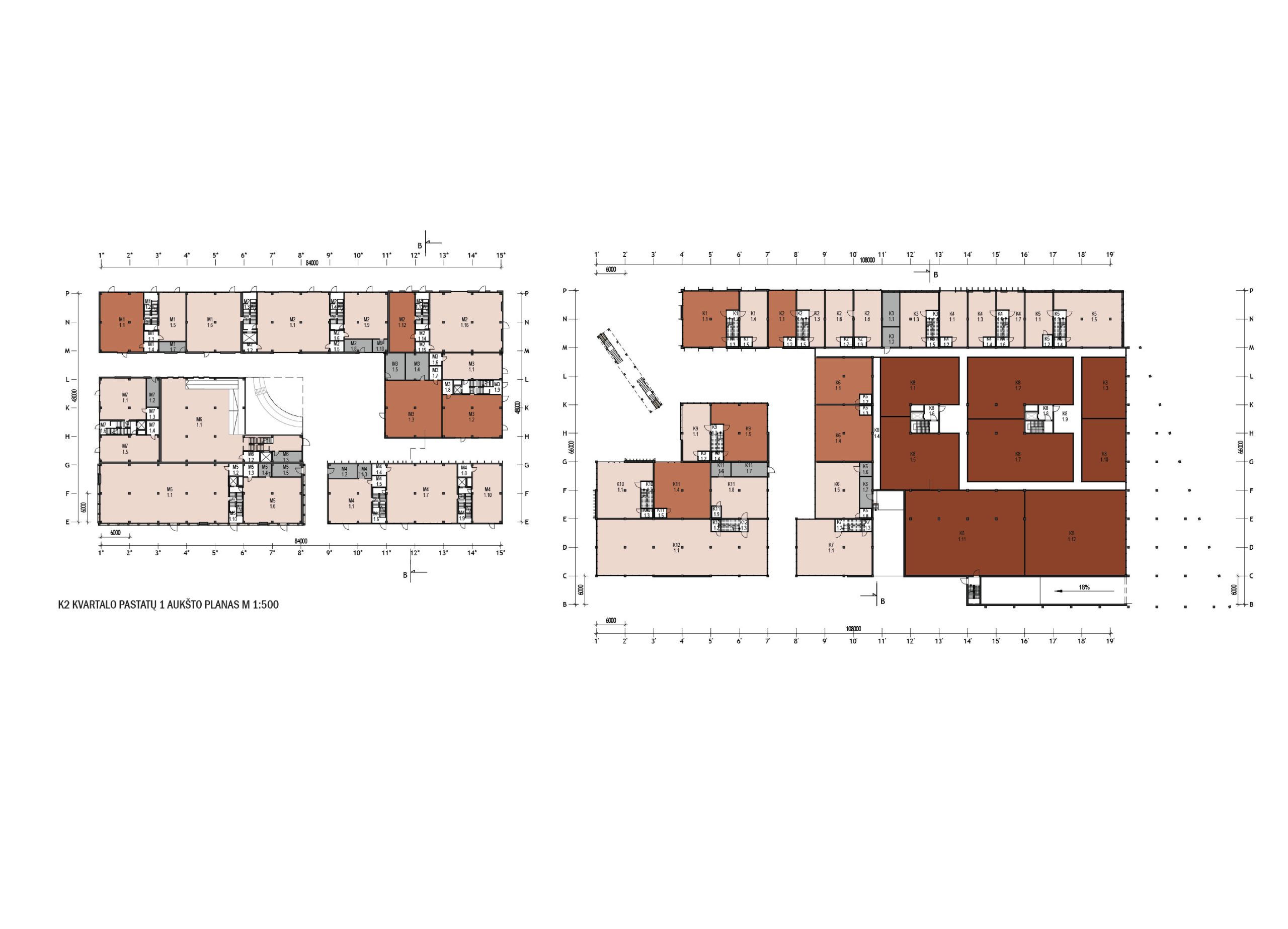
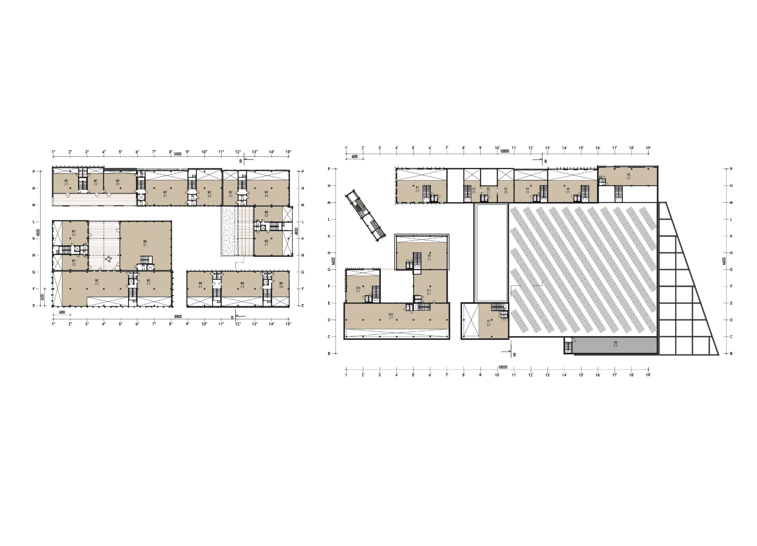
The urban concept is based on the MIN-MID-MAX idea, ensuring the flexibility and functionality of public spaces according to the time of day and changing needs. Each public space is activated by multiple scenarios; for instance, the MAX square serves as a coffee and lunch area during the day, transforming into a meeting spot in the evening. The structure of the quarter reflects the Two-Speed (FAST / slow) principle, differentiating facades near the highway from the calmer, slower-moving architecture facing the avenue. Buildings are designed using wooden structures (mokuso), embodying principles of sustainability and creating a unique, easily recyclable identity.

The architectural expression is inspired by Eastern culture, seeking harmony with nature, simplicity, and minimalism. The dominant feature of the K2 quarter is an observation tower accessible to visitors 24/7, which serves as a landmark and activates the surrounding functions. The chosen perimeter block morphotype helps establish a clear relationship between public and private spaces. This project will deliver a modern, unique, and sustainable point of attraction for all of Vilnius.

Awards
  • Architectural Idea Competition - 2nd prize

Principles of District Formation

A 24/7 Functionally Active District

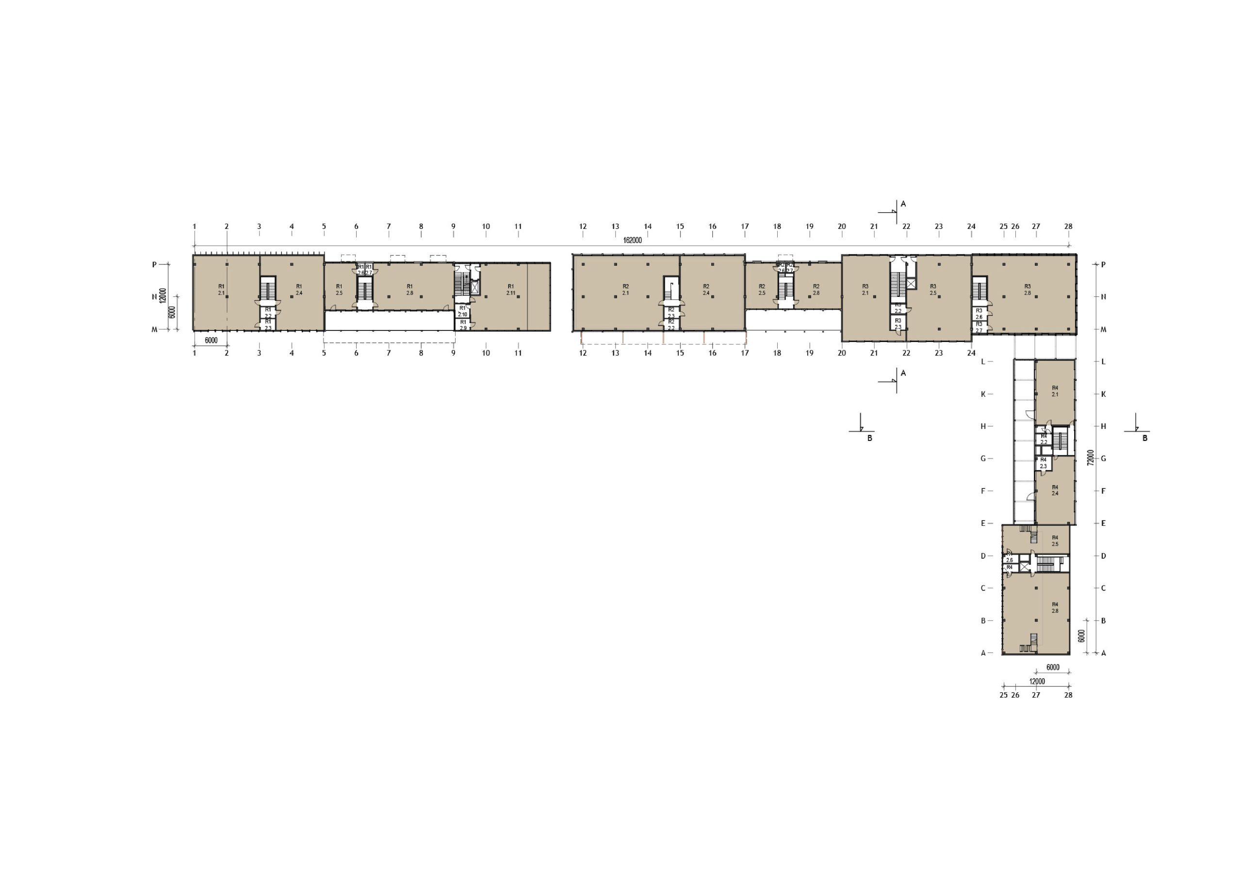
Structural Module Schemes