SKEW THE NEW – Vilnius University Campus

SKEW THE NEW – Vilnius University Campus
  • Location Vilnius, Lithuania
  • Type Educational
  • Size 79 950 m²
  • Year 2025
  • Status Proposal
  • Client Vilnius University
  • Images Ivas Bagdonavičius
  • Project lead Elena Paleckytė, Ignas Lukauskas
  • Authors Project design (Misiuna / McCarthy): Rūta Misiūna, Jacob McCarthy. Project management: Elena Paleckytė, Ignas Lukauskas, Julius Lapinskas

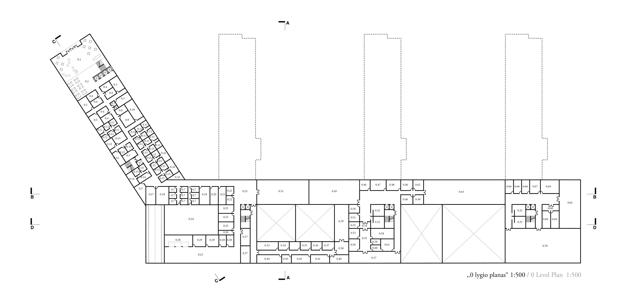
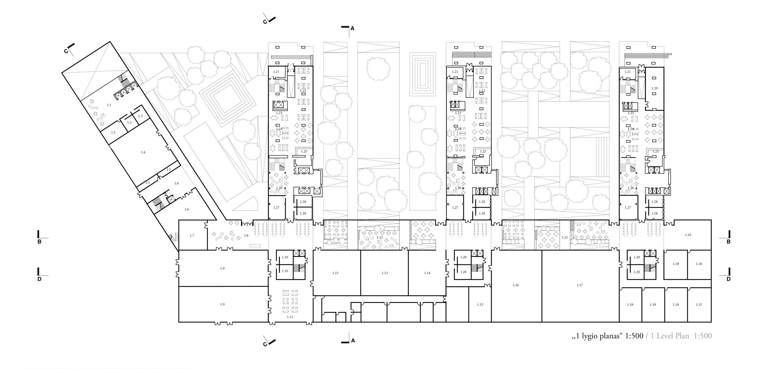
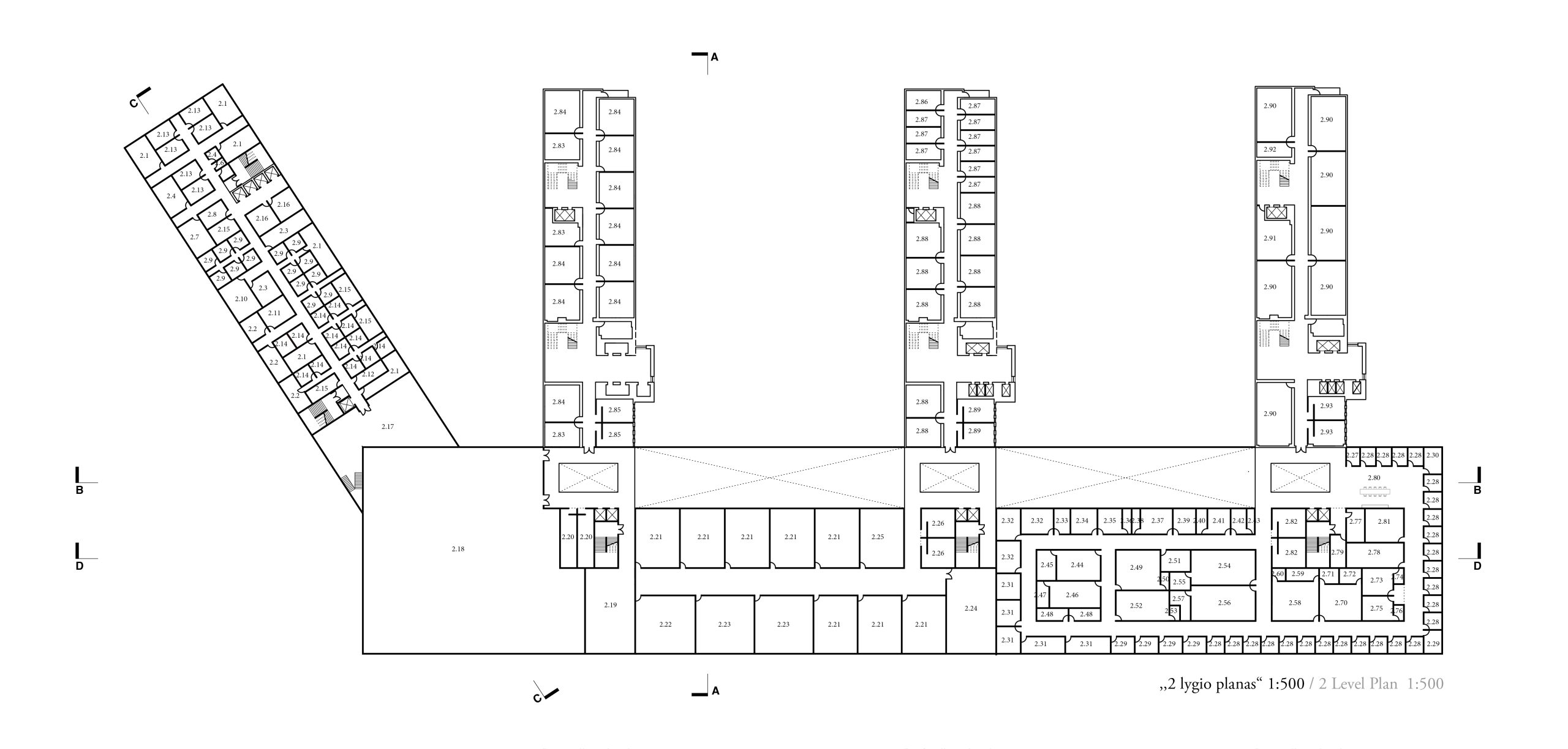
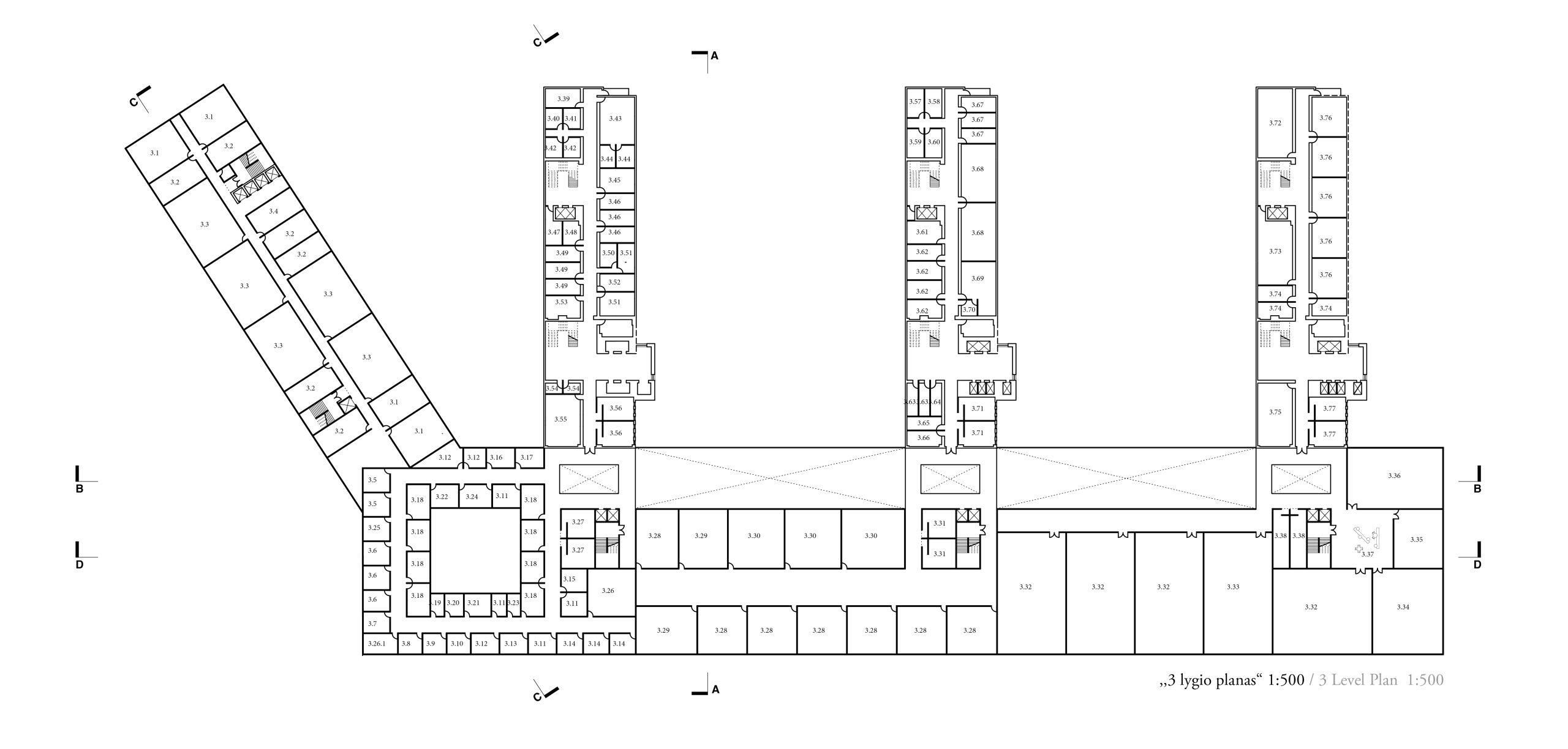
The "Skew the New" project represents a transformative vision for the Vilnius University Saulėtekis Campus, designed to modernize its mid-century modernist heritage while establishing new benchmarks for sustainable design and collaborative academic space. The comprehensive intervention encompasses the deep renovation of three existing 8-story faculty towers and the construction of two new buildings.

Architectural Concept: Skewing Tradition and Fostering Vistas
The project is anchored by a deliberate skew in the masterplan: the new Faculty of Mathematics and Informatics (MIF) building is intentionally rotated off the axis of the existing orthogonal towers. This symbolic rotation is the conceptual focal point of the proposal, bridging the rigid modernism of the 1960s with the site’s natural topography and embracing the university's future-focused, innovative mission. This orientation also maximizes vistas toward the adjacent forest, reinforcing a strong visual connection to nature that is further enhanced by the site's new landscaping.

Strategic and Sustainable Design
The core of the revitalization is a new multifunctional connecting building that seamlessly links all four towers (three renovated and the new MIF tower). This structure is organized around a central, glass-walled promenade—the architectural backbone of the campus—that runs the length of the site. Its dynamic section, incorporating accessible ramps and bleacher seating, facilitates intuitive wayfinding, promotes spontaneous cross-disciplinary collaboration, and creates a vibrant hub for the over 24,000 campus users.

The new buildings utilize a mass timber structural system, significantly reducing the project's carbon footprint. The MIF building features a dynamic frameless ultra-high-performance glass curtain wall system with user-operated shutters and thermally insulating curtains to provide superior thermal control and visual texture. This innovative low-tech/high-tech strategy enhances the building's energy performance while allowing the façade to constantly change, reflecting the surrounding environment.

Phased Implementation and Conservation
The phased implementation ensures minimal disruption to ongoing university operations. The renovation of the existing modernist towers focuses on preserving their architectural integrity while incorporating high-performance insulation and stone rainscreen cladding to meet contemporary energy demands. The project achieves maximum resource efficiency by demolishing the inefficient former connecting building and prioritizing the reuse of existing architectural elements and recycling of materials throughout the four construction stages.

"Skew the New" is a pragmatic, data-driven proposal that honors the campus's past while creating a highly functional, sustainable, and collaborative environment ready to meet the challenges of world-class research and education.

Awards
  • Architectural Idea Competition - 5th prize

Redefining the Vilnius University Campus